2729 HIERBABUENA
En el popular distrito de Tetuán hemos iniciado el proyecto de un nuevo edificio con estructura sostenible y por primera vez, con una fachada ventilada acabada en madera.
Edificación sostenible
- Edificio diseñado con criterios de casas pasivas
- Estructura de bajas emisiones
- Aislamientos por el exterior sobredimensionados
- Ventanas de altas prestaciones
- Sistema de climatización por suelo radiante refrescante
- Favorecimiento de movilidad sostenible con cargadores de vehículos eléctricos
- Utilización de materiales naturales y de proximidad para acabados
- Bomba de calor aerotérmica para climatización y agua caliente
- Sistemas de recuperación de calor en ventilación
- Paneles fotovoltaicos para generación de energía
- Lavandería común para la reducción de consumos energéticos
- Iluminación LED en zonas comunes
- Sistemas de reducción de consumos de agua
8 Viviendas y Trasteros
Es un edificio para ocho viviendas, siete de dos dormitorios y un apartamento de un dormitorio, aparcamientos y trasteros.
En el sótano del edificio se han proyectado los trasteros, y un espacio para la lavandería comunitaria, que permitirá un ahorro considerable del consumo de agua y de electricidad. En la zona libre de la planta baja se ubicarán cinco plazas de aparcamiento, y un amplio espacio de acceso peatonal semiabierto que conecta directamente con el aparcamiento y con el núcleo de la escalera y el ascensor.
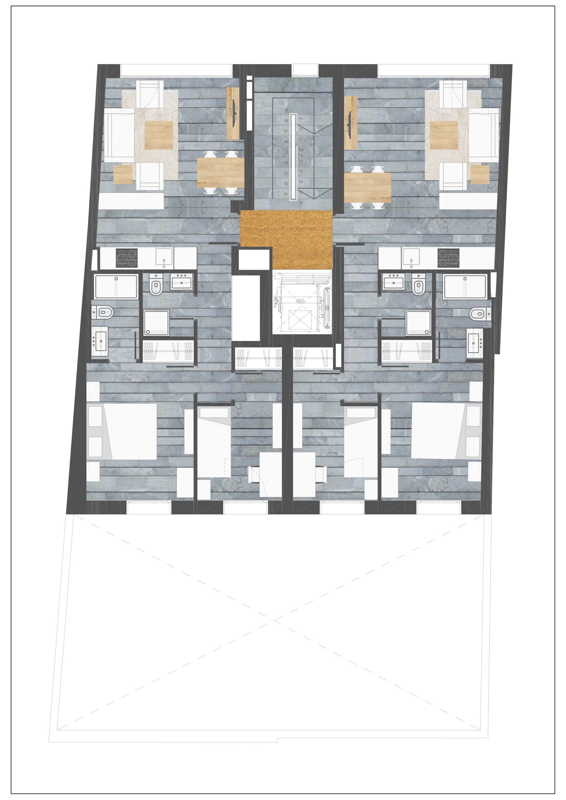
En las plantas primera, segunda y tercera se han proyectado dos apartamentos con dos baños en cada una, junto un espacio de estar conectado con la cocina.
En la planta ático hay también dos apartamentos, uno de dos dormitorios, y otro más pequeño de un solo dormitorio, ambos con un cuarto de baño. Ambos cuentan con amplias terrazas a la calle.
PLANTA SOTANO

PLANTA BAJA

PLANTA TIPO - 2 APARTAMENTOS

PLANTA ÁTICO - 2 APARTAMENTOS

La documentación presentada es meramente orientativa, pudiendo estar sujeta a modificaciones por indicación de la propiedad, la dirección de obra o la administración competente. Por tanto, no puede ser considerada como obligación contractual, sino como información de carácter general.